編輯:上海雙高閥門集團有限公司
日期:2020-08-20 訪問:1618
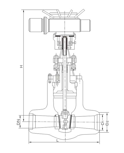
高溫高壓電動焊接閘閥介紹

1、制造與驗收技術條件按E101和JB/T3595的規定。
2、閥門試驗按JB/T3595和JB2640的規定,閥門密封試驗和上密封試驗壓力按JB/T3595的規定。
3、結構長度按E101的規定或用戶提供尺寸。
4、焊接坡口按電力工業管理標準78DG的規定或按用戶提供尺寸。
主要尺寸及重量:

地 址:上海市松江葉榭工業區葉旺路雙高工業區
電 話:021-57802222 67801100 67801122 67801266
傳 真:021-67801267 67801268
http://www.shuanggao.com
E-mail:sales@shuanggao.com
上海雙高閥門(集團)有限公司 |
|||||||||||||||||||||
|
|||||||||||||||||||||