編輯:上海亞核閥業成套有限公司
日期:2020-09-04 訪問:2177

一、用途
閥門裝在高壓加熱器出口給水管道上與高加進口閥配套使用。當入口閥關閉同時止回閥關閉,給水切換到旁路,高壓加熱器安全解列。
二、標準及規范

三、性能規范

四、結構優勢與特點
1. 閥門中腔采用壓力自緊密結構,密封性好;
2. 閥瓣、閥座密封面采用堆焊硬質合金而成,耐磨、抗擦傷性能好。
3.閥桿表面經抗蝕性氮化處理,具有良好的抗腐蝕性和抗擦傷性。
五、安裝及使用說明
1. 閥門應垂直安裝,閥門與管道焊好后,應清洗干凈,清除焊渣等污物。
2. 投運時用手輪將閥桿旋到最高位置。
3. 必須按箭頭所示介質流向進行安裝。
六、主要零件材料

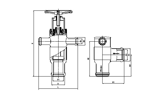
七、 主要外形及連接尺寸


上海亞核閥業成套有限公司 |
|||||||||||||||||||||
|
|||||||||||||||||||||